OVERVIEW
Welcome to Curated Villas, Siolim. Nestled in the heart of Siolim is an alluring lush green pathway leading
to a pristine gated community, with its white washed walls, sun-kissed shingled rooftops and
contemporary interiors – a captivating mix of tints and textures, all framed by the beauty of nature.
A high-end residential development spread across 1.26 acres of land adorned with exquisitely landscaped
gardens surrounding 11 decadent villas. Curated Group offers residences that range from chic, cozy four-bedroom
homes to expansive, multi-tiered five-bedroom villas designed for seamless indoor–outdoor living.
A harmonious blend of nature and luxury, each villa exhibits a fully furnished and designed home along with a
modern equipped kitchen, personal pool, private car park and also generously sized balconies to enjoy warm
sunlit days against the serene backdrop of beautiful Goa.
find your fit
Floor plans
Villa Type 1 - villa no. 1,2,8,9
Villa Type -1
Car Parking
9.55M X 5M
Entrance
2.3M X 4.1M
Verandah
1.5M Wide
Living
8M X 4.1M
Courtyard
19.1M X 3.48M
Dining
4.1M X 4.1M
Kitchen
4.1M X 4.3M
Courtyard 1
2.8M X 5.15M
Powder Room
2.15M X 1.6M
Lift
1.55M X 1.5M
Staff Bedroom
2.5M X 4.1M
Courtyard 2
2.37M X 2.8M
Bathroom 1
1.9M X 2.8M
Bathroom 2
1.9M X 2.8M
Bedroom
4.1M X 4.1M
Pool
3.2M X 9M
Courtyard 3
3.35M X 11.32M
Passage
1.2M Wide
Villa Type -1
- Entrance Porch – 2.5M X 4.1M
- Pool – 3.2M X 9M
- Balcony – 1.5M Wide
- Bedroom – 5.2M X 4.1M
- Bathroom – 1.9M X 2.8M
- Passage – 1.2M Wide
- Lift – 1.5M X 1.5M
- Balcony – 1.5M Wide
- Bedroom – 4.1M X 5.2M
- Bathroom – 4.1M X 2M
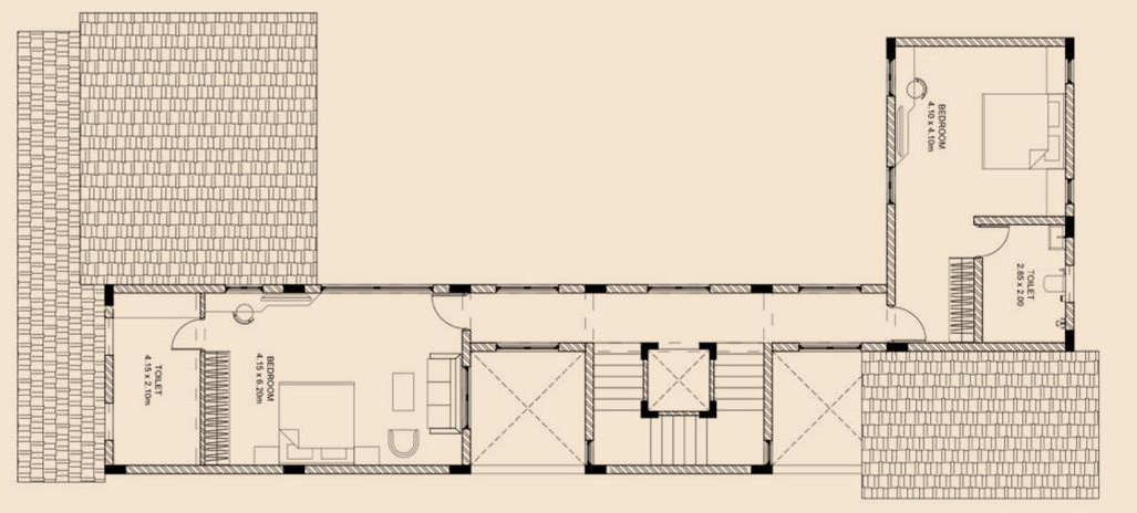
Villa Type 2 - villa no. 3,7
Villa Type -2
Total area
Total area
Car Parking
4.8M x 4.5M
Parking
4.8M x 4.5M
Courtyard
10.45M x 6.15M
Balcony
1.5M Wide
Bedroom
4.1M x 4.1M
Wardrobe 1
3.05M x 1M
Wardrobe 2
3.1M x 2.05M
Lift
1.55M X 1.5M
Toilet 1
2.85M x 2M
Toilet 2
3.1M x 2.05M
Bathroom 2
5.2M x 4.1M
Pool
7.5M x 3M
Balcony
1.5M Wide
Villa Type -2
- Parking – 4.8M x 4.5M
- Bedroom – 4.1M x 4.1M
- Toilet – 1.9M x 2.8M
- Toilet – 1.3M x 2.3M
- Staff Bedroom – 2.9M x 4.1M
- Verandah – 1.5M Wide
- Passage – 1.2M Wide
- Courtyard – 10.45M x 6.15M
- Pool – 7.5M x 3M
- Verandah – 1.5M Wide
- Living Dining – 4.3M x 6.1M
- Kitchen – 2.95M x 4.1M
- Lift – 1.5M x 1.5M
- Powder Room – 2.7M x 1.2M
- Verandah – 1M Wide
- Courtyard – 9.9M x 3.3M
- Parking – 4.8M x 4.5M
Villa Type 3 - villa no. 4
Villa Type -3
Car Parking
4.8M x 4.5M
Parking
4.8M x 4.5M
Courtyard
10.45M x 6.15M
Balcony
1.5M Wide
Bedroom
4.1M x 4.1M
Wardrobe 1
3.05M x 1M
Wardrobe 2
3.1M x 2.05M
Lift
1.55M X 1.5M
Toilet 1
2.85M x 2M
Toilet 2
3.1M x 2.05M
Bathroom 2
5.2M x 4.1M
Pool
7.5M x 3M
Balcony
1.5M Wide
Villa Type -3
- Parking – 2.85M x 4.1M
- Courtyard – 9.1M x 1.7M
- Toilet – 3.1M x 2.05M
- Wardrobe – 3.1M x 2M
- Bedroom – 5.2M x 4.1M
- Balcony – 1.5M Wide
- Lift – 1.5M x 1.5M
- Passage – 1.2M Wide
- Courtyard – 12M x 4.5M
- Pool – 7.5M x 3M
- Wardrobe – 3.0M x 1.9M
- Toilet – 2.85M x 2M
- Bedroom – 4.1M x 4.1M
- Balcony – 1.5M Wide
Villa Type 4 - villa no. 5
Villa Type -4
- Kitchen – 2.95M x 4.1M
- Living Dining – 4.3M x 8.1M
- Verandah – 1.5M Wide
- Parking – 5.92M x 4.32M
- Staff Bedroom – 4.1M x 2.3M
- Toilet – 2.9M x 1.6M
- Verandah – 1.5M Wide
- Courtyard – 3.48M x 8.02M
- Pool – 7.5M x 3M
- Verandah – 1.5M Wide
- Bedroom – 4.1M x 4.1M
- Toilet – 2.8M x 1.8M
- Passage – 1.2M Wide
- Lift – 1.5M x 1.5M
- Powder Room – 2.7M x 1.2M
Villa Type -4
- Toilet – 3.1M x 2.05M
- Wardrobe – 3M x 1.95M
- Bedroom – 5.1M x 4.1M
- Balcony – 1.5M Wide
- Park – 5.92M x 4.32M
- Passage – 1.2M Wide
- Lift – 1.5M x 1.5M
- Courtyard – 3.48M x 8.02M
- Pool – 7.5M x 3M
- Balcony – 1.5M Wide
- Bedroom – 4.1M x 4.1M
- Toilet – 2.8M x 1.8M
- Wardrobe – 1.1M x 2M
Villa Type 5 - villa no. 6
Villa Type -5
- Parking – 5.92M x 4.32M
- Staff Bedroom – 2.1M x 2.9M
- Toilet – 2.3M x 1.3M
- Toilet – 2.9M x 1.9M
- Bedroom – 4.1M x 4.1M
- Verandah – 1.5M Wide
- Verandah – 1.5M Wide
- Courtyard – 5.4M x 3.85M
- Pool – 7.5M x 3M
- Passage – 1.2M Wide
- Lift – 1.5M x 1.5M
- Powder Room – 2.1M x 2.9M
- Kitchen – 4.3M x 3.9M
- Dining – 4.1M x 4.15M
- Living – 4.1M x 4.1M
Villa Type -5
- Parking – 5.92M x 4.32M
- Balcony – 1.5M Wide
- Toilet – 1.9M x 2.9M
- Bedroom – 4.1M x 4.1M
- Wardrobe – 2.1M x 2.1M
- Courtyard – 5.4M x 3.85M
- Pool – 7.5M x 3M
- Passage – 1.2M Wide
- Lift – 1.5M x 1.5M
- Toilet – 2.1M x 2.9M
- Passage – 1.2M Wide
- Bedroom – 5.2M x 4.1M
- Balcony – 1.5M Wide
Villa Type 6 - villa no. 10,11
Villa Type -6
- Parking – 3.8M x 7.8M
- Kitchen – 4M x 2.57M
- Dining – 4.1M x 4.1M
- Living – 4.1M x 4.1M
- Verandah – 1M Wide
- Pool – 2.85M x 9.1M
- Bedroom – 4.1M x 4.1M
- Verandah – 1M Wide
- Toilet – 1.9M x 2.7M
- Toilet – 2.7M x 1.2M
- Lift – 1.5M x 1.5M
- Passage – 1M Wide
- Bedroom – 4.1M x 4.1M
- Toilet – 2.8M x 1.3M
- Bedroom – 4.1M x 2.7M
Villa Type -6
- Parking – 3.8M x 7.8M
- Verandah – 1M Wide
- Bedroom – 4.1M x 4.1M
- Toilet – 1.9M x 2.7M
- Toilet – 2.7M x 1.2M
- Passage – 1M Wide
- Lift – 1.5M x 1.5M
- Pool – 2.85M x 9.1M
- Verandah – 1M Wide
- Bedroom – 4.1M x 4.1M
- Balcony – 1M Wide
- Bedroom – 4.1M x 4.1M
- Toilet – 2.8M x 1.3M
- Bedroom – 4.1M x 2.7M
FEATURES & SPECIFICATIONS
Private Pool
Gated Community
Private Parking
Landscaped Garden
Private Entrance
24×7 CCTV Surveillance
Furnished and Equipped
Telephone and Internet Connection
Full Power Backup
Luxurious Facade & Finishes
Total Privacy
High-Speed Internet
Private Gym
Open Bar
Fully Air-Conditioned
Jacuzzi
Fully Furnished
FEATURES & SPECIFICATIONS
Private Pool
Gated Community
Private Parking
Landscaped Garden
Private Entrance
24×7 CCTV Surveillance
Furnished and Equipped
Telephone and Internet Connection
Full Power Backup
Luxurious Facade & Finishes
Total Privacy
High-Speed Internet
Private Gym
Open Bar
Fully Air-Conditioned
Jacuzzi
Fully Furnished
Kindly share your details to learn more
Contact Us
GET IN TOUCH FOR QUERIES
We’d love to share more with you, please complete this form and our dedicated team will get back to you shortly.
+91 98999 22228 / 87000 71606
info@curatedhomes.co.in

